Formularz Kontaktowy 696 023 200

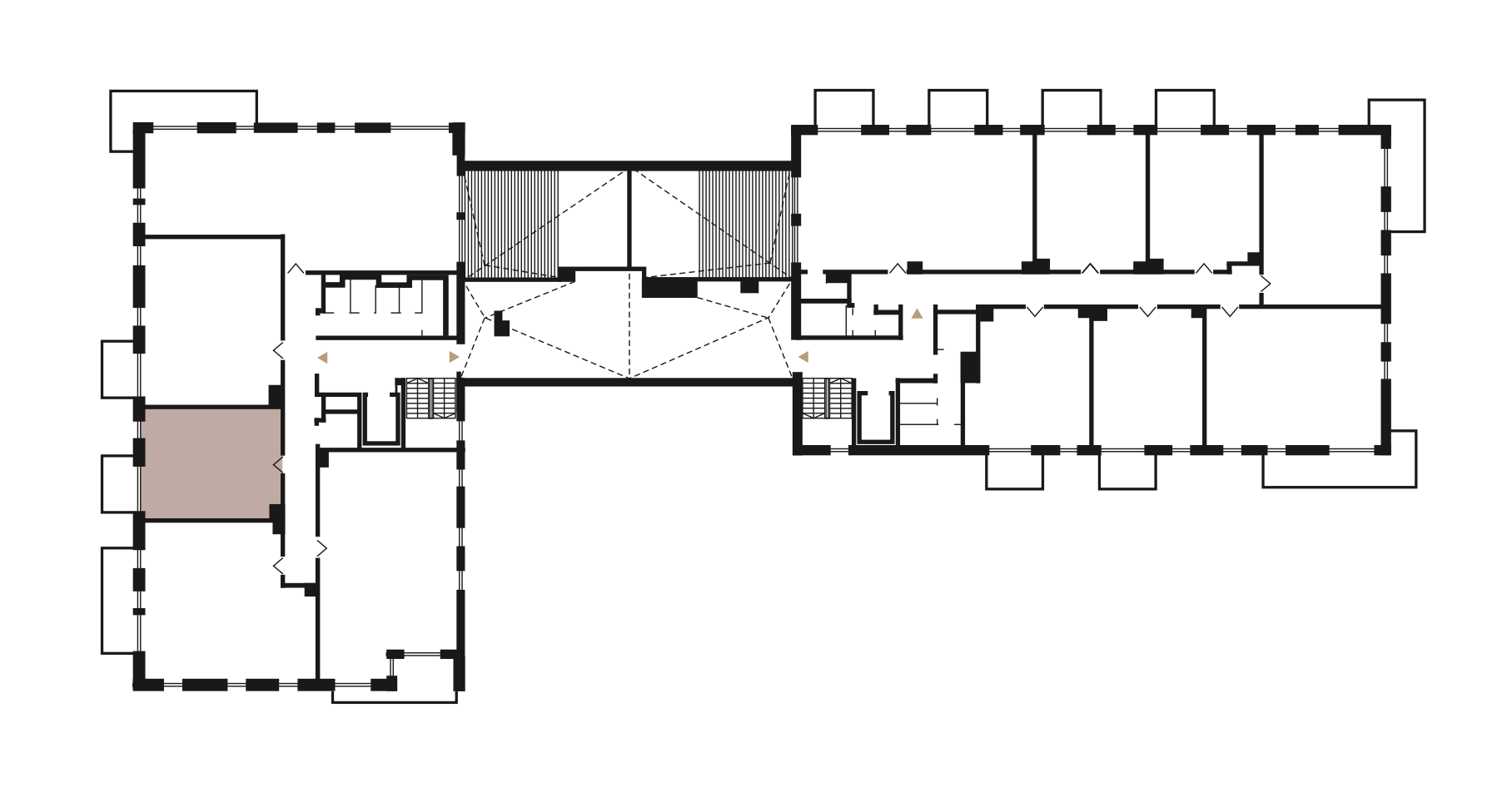
Karta lokalu D74

42,04 m2

Łódź, ul. Pienista 80

sprzedane
D74

ŚCIANY WYDZIELAJĄCE MIESZKANIE, ŚCIANY KONSTRUKCYJNE, SZACHTY INSTALACYJNE (NIEDEMONTOWALNE)

ŚCIANY DZIAŁOWE

Koszty dodatkowe

udział w drodze dojazdowej
1 zł brutto
wykończenie balkonu
600 zł brutto/m2

Koszty rodzajowe

Zgodnie z art. 19a ust. 1 pkt 1 Ustawy o Jawności Cen, gdy deweloper pełni jeszcze rolę zarządcy - opłaty eksploatacyjne rozumiane jako koszty związane z utrzymaniem 
i bieżącym użytkowaniem nieruchomości w zakresie części wspólnych oraz dotyczące lokalu: koszty energii elektrycznej, koszty wody ciepłej i zimnej, koszty ogrzewania centralnego, kontener na odpady, wywóz śmieci i sprzątanie)

Powierzchnie dodatkowe

  • Miejsca parkingowe
  • Boksy rowerowe
  • Komórki lokatorskie
Budynek D
Lokal
D74
Budynek
D
Piętro
4
Liczba pokoi
2
Pow. użytkowa
42,04m2
Balkon
5,23m2
Enklawa Natury

    Zapytaj o ofertę