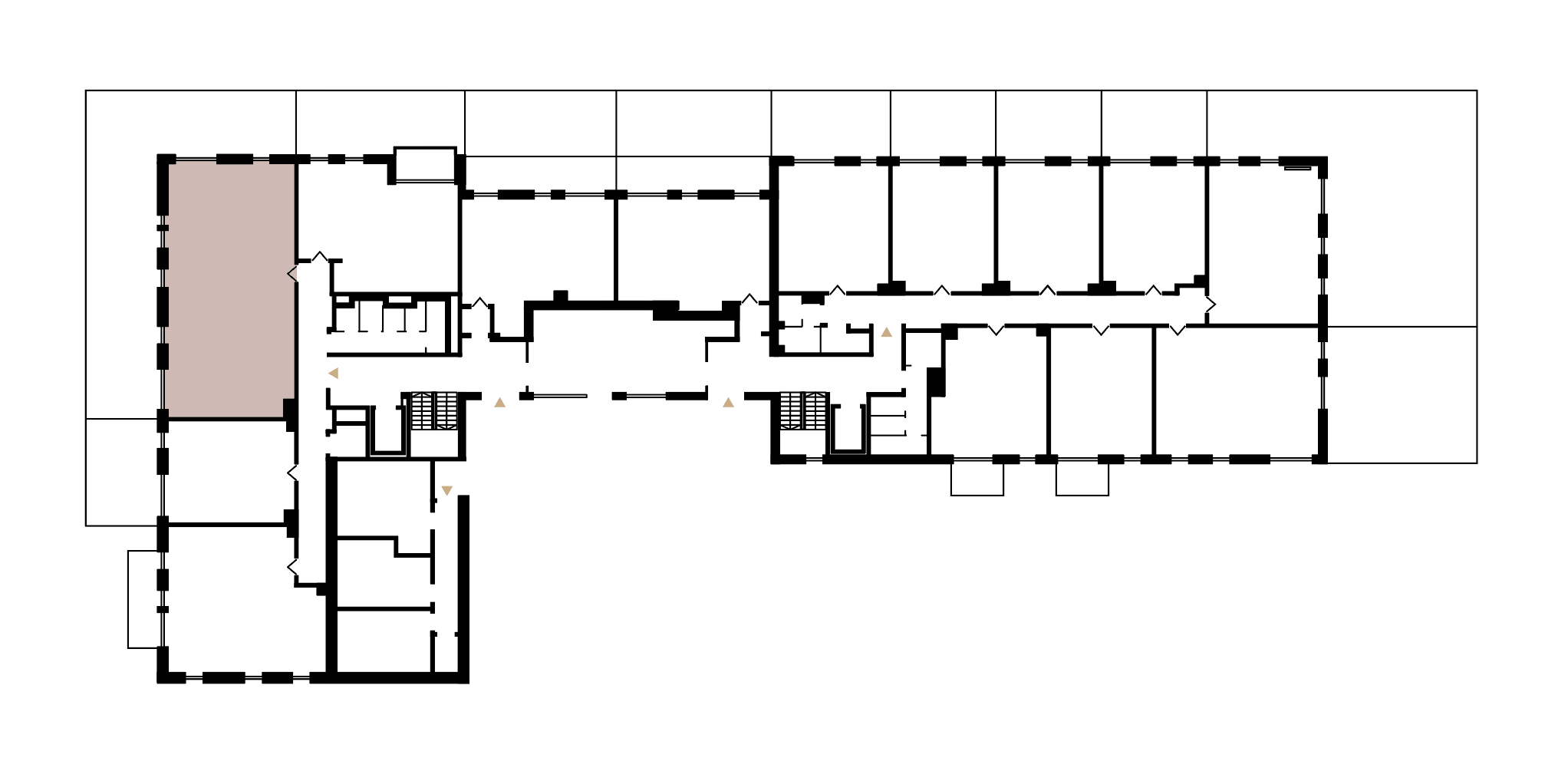
Karta lokalu D46
101,54 m2
Łódź, ul. Pienista 80
sprzedane
ŚCIANY WYDZIELAJĄCE MIESZKANIE, ŚCIANY KONSTRUKCYJNE, SZACHTY INSTALACYJNE (NIEDEMONTOWALNE)
ŚCIANY DZIAŁOWE
Koszty dodatkowe
udział w drodze dojazdowej
1 zł brutto
wykończenie balkonu
600 zł brutto/m2
Koszty rodzajowe
Zgodnie z art. 19a ust. 1 pkt 1 Ustawy o Jawności Cen, gdy deweloper pełni jeszcze rolę zarządcy - opłaty eksploatacyjne rozumiane jako koszty związane z utrzymaniem i bieżącym użytkowaniem nieruchomości w zakresie części wspólnych oraz dotyczące lokalu: koszty energii elektrycznej, koszty wody ciepłej i zimnej, koszty ogrzewania centralnego, kontener na odpady, wywóz śmieci i sprzątanie)Powierzchnie dodatkowe
- Miejsca parkingowe
- Boksy rowerowe
- Komórki lokatorskie
Biuro sprzedaży
Ul. Lotnicza 22 lok. 2
93-467 Łódź
czynne: pn. – czw. 8:00 – 17:00, pt. 8:00 – 16:00
sobota: wcześniej umówione spotkanie


